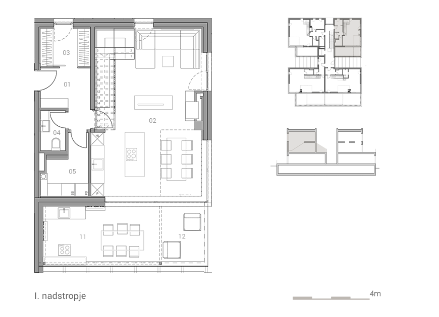
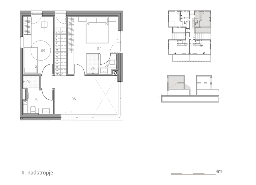
Apartment 6
is a two-bedroom duplex apartment on the first and second floor of the facility. The apartment has a north-east orientation. The first floor of the apartment includes a spacious living area with contemporary design including a kitchen with an island and a fireplace, utility area and a separate toilet. A terrace with a south-east orientation extends alongside the living area. The apartment’s distinctive features are the double-floor area and a console staircase connecting the living area with the gallery on the second floor. The second floor consists of a spacious bedroom with an en suite bathroom and a spare room with its own bathroom. There is a storage area and two private parking spaces designated to the apartment in the basement.

