Gravida proin loreto of Lorem Ipsum. Proin qual de suis erestopius summ.

Recent Posts

    Sorry, no posts matched your criteria.

Error: Contact form not found.

Follow Us:
Back to top

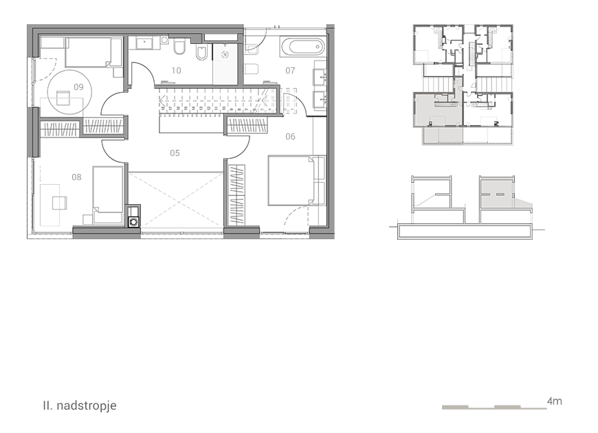
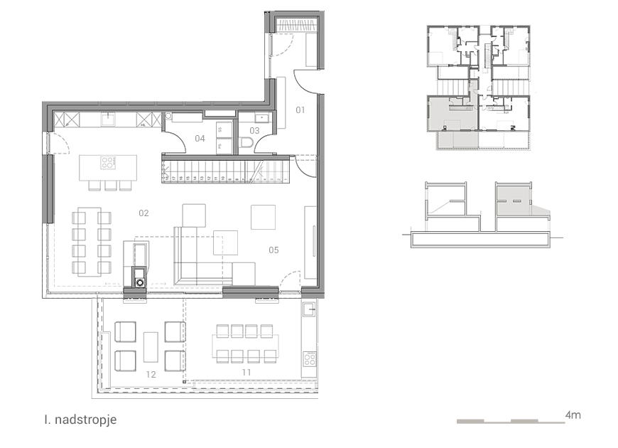
Apartment 7

is a three-bedroom duplex apartment on the first and second floor of the facility. The apartment has a north-west orientation. The first floor of the apartment includes a spacious living area with contemporary design including a kitchen with an island and a fireplace, utility area and a separate toilet. A terrace with a south-west orientation extends alongside the living area. The apartment’s distinctive features are the double-floor area and the console staircase connecting the living area with the gallery on the second floor. The second floor also includes a spacious bedroom with an en suite bathroom and two spare rooms with a joint bathroom. There is a storage area and two private parking spaces designated to the apartment in the basement.

Type: 3-bedroom duplex        Position: I. & II. floor        Orientation: south-west        Status: sold

Type: 3-bedroom duplex     Position: I. & II. floor     Orientation: south-west     Status: unavailable

Floor Plan & Position

    Surface Data

  • 169,50
  • UNIT 7
    m2
    APARTMENT131,88
        01 ENTRANCE8,69
        02 LIVING AREA59,15
        03 TOILET2,31
        04 UTILITY4,17
        05 GALLERY9,07
        06 BEDROOM14,22
        07 BATHROOM 17,27
        08 ROOM 110,59
        09 ROOM 29,90
        10 BATHROOM 26,51
    CLOSED TERRACE18,20
        11 TERRACE 118,20
    OPEN TERRACE14,63
        12 TERRACE 26,49
    STORAGE4,79
Tip

štirisobno dupleks

Pozicija

I. in II. nadstropje

Orientacija

jug-zahod

Status

naprodaj