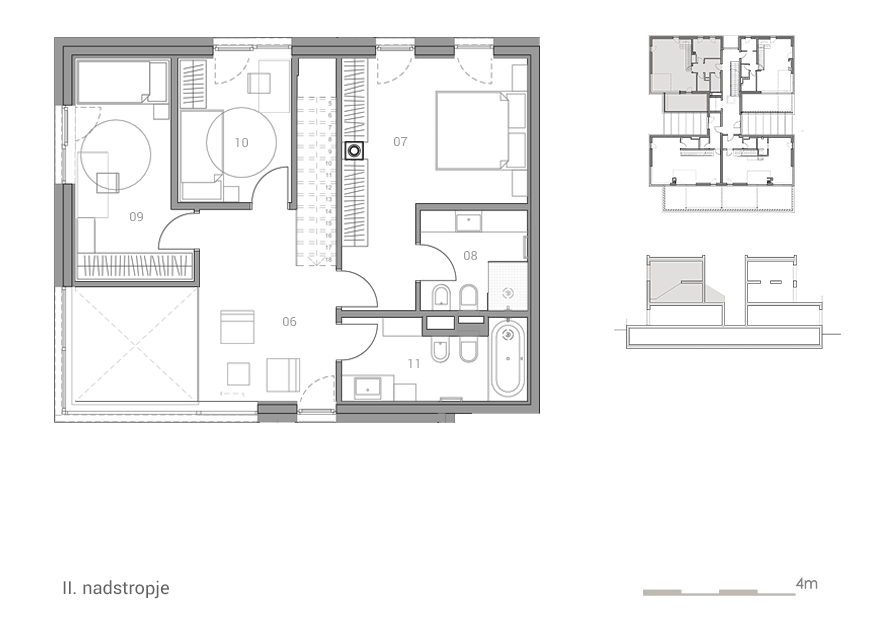
Apartment 5
is a four-bedroom duplex apartment on the first and second floor of the facility. The apartment has a north-west orientation. The first floor of the apartment includes a spacious living area with contemporary design including a kitchen with an island and a fireplace, utility area and a bathroom. A terrace with a south-west orientation extends alongside the living area. The apartment’s distinctive features are the double-floor area and a console staircase connecting the living area with the gallery on the second floor. The second floor consists of a spacious bedroom with an en suite bathroom and two spare rooms with a joint bathroom. There is a storage area and two private parking spaces designated to the apartment in the basement.

